As Built Services | Retail, Campus, Industrial and Precise Existing Conditions Surveys

10000

As Built Services | Retail, Campus, Industrial and Precise Existing Conditions Surveys

10000

Description


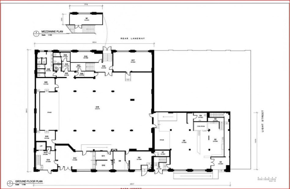
As Built Services | Retail, Campus, Industrial and Precise Existing Conditions Survey - ARC: With Architectural Resource Consultants (ARC), you can rely on our retail as built documentation for your rebranding campaigns, campus as built drawings for complex university or college settings, and industrial as built deliverables to help with acquisitions and tenant turnover.

Please Visit Our Website:

https://www.arc-corporate.com/as-builts

 

Existing Conditions Survey

AD
Advance Point of sale
Restaurant Point of sale


Restaurant Point of sale



Reviews


To write a review, you must login first.

From the Same Seller


Electric Go Karts for Sale | Kids & Adult Off-Road Models

As Built Services | Retail, Campus, Industrial and Precise Existing Conditions Surveys

Pinetop Lakeside Shingle Roofing Company- Siding, Windows, Gutters, Deck Contactors

ABA Therapy for Children in Tempe AZ | Behavioral Autism Center

Restaurant Point of sale
Restaurant POS WinForm - RPW

Seller Info


Location


18141 Irvine Blvd, Tustin, CA 92780, United States (View Map)



Get it for free Restaurant POS WinForm - RPW

Gailife Comfort Bras for Women V Neck Wireless Bras T-Shirt Bras Bralette for Women No Underwire with Extra Bra Extende